



Soluzioni ideali per il parcheggio o il ricovero mezzi in un contesto signorile e protetto.
Proponiamo in vendita due ampi box auto situati in una posizione estremamente funzionale a Grottaglie, precisamente in Via Lucania n. 1 (angolo Via Sassari). Le unità si trovano all’interno di un contesto condominiale curato, poste al secondo piano interrato, garantendo massima sicurezza e protezione per i vostri veicoli.
Le Soluzioni Disponibili
L’offerta è caratterizzata da un’ottima flessibilità, con la possibilità di acquisto singolo o combinato, ideale sia per privati che per investitori:
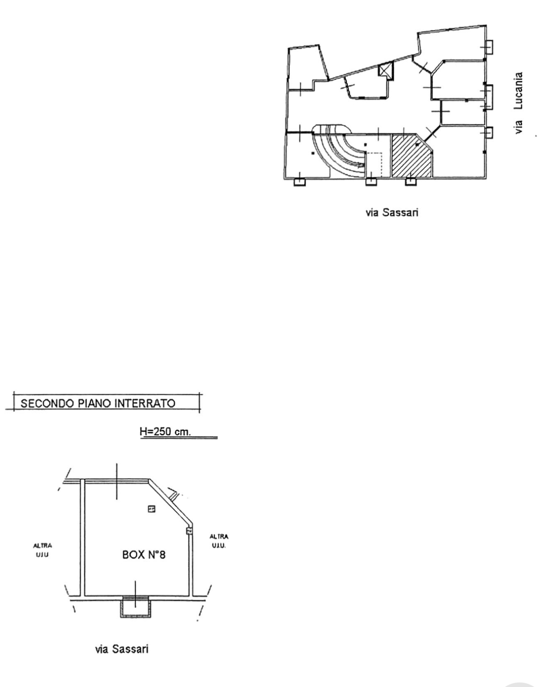
-Box Auto 1: Superficie di 23 mq. Spazio ideale per un’auto di grandi dimensioni e scaffalature.
-Prezzo: € 16.000
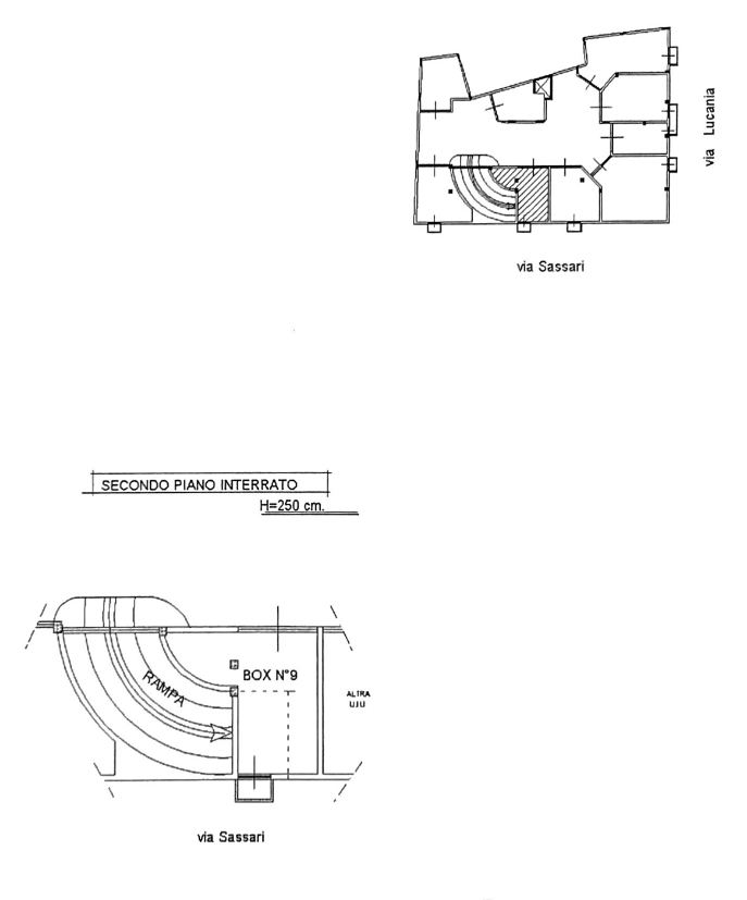
-Box Auto 2: Superficie di 26 mq. Ampia metratura che consente il ricovero di auto e moto, o spazio extra per uso deposito.
-Prezzo: € 18.000
Opportunità di Accorpamento
Le due unità sono adiacenti: eliminando un semplice tramezzo divisorio, i due box si possono accorpare per creare un unico grande garage di circa 49 mq, ideale per chi necessita di ampio spazio di manovra o di un deposito generoso.
Caratteristiche principali:
-Posizione: Grottaglie, Via Lucania n. 1 (angolo Via Sassari).
-Accesso: Comoda rampa di accesso e ampi spazi di manovra.
-Sicurezza: Collocazione in piano interrato condominiale con cancelli di protezione.
-Versatilità: Possibilità di acquistarli insieme per una superficie totale di 49 mq.
Perché investire in un box auto?
In una zona centrale e densamente abitata, possedere un garage di proprietà significa non solo risparmiare tempo prezioso nella ricerca del parcheggio, ma anche aumentare il valore e il comfort della propria abitazione o garantirsi una rendita sicura da locazione.
Non lasciarti sfuggire questa opportunità! Contattaci subito per maggiori informazioni o per fissare un sopralluogo.
“Vuoi comprare o vendere una casa a 📍Grottaglie?
Affidati all’esperienza di Martano Immobiliare.
☎️ Contattaci oggi stesso per una consulenza o una valutazione gratuita del tuo immobile! Che sia un appartamento in centro o una villa, siamo i tuoi esperti di zona. 🏠”
Residenziale
Box Auto
No
Secondo piano interrato